Moderne trifft Natur - Bungalows im Grünen
2. November 2021
Sie sind zurück. Bungalows.

Bereits in den 60-iger Jahren erlebten Sie eine große Blütezeit. Nicht zur zum Urlaub machen, sondern auch als Wohnform. Bestes Beispiel ist der Kanzlerbungalow, welcher als ehemaliges Wohn- und Empfangsgebäude des Bundeskanzlers in Bonn genutzt wurde.
Heute überzeugen Bungalows mit ihrer klaren Architektur, modernen Design, offenen Grundrisse, große Glasfronten in Verbindung mit der Natur.
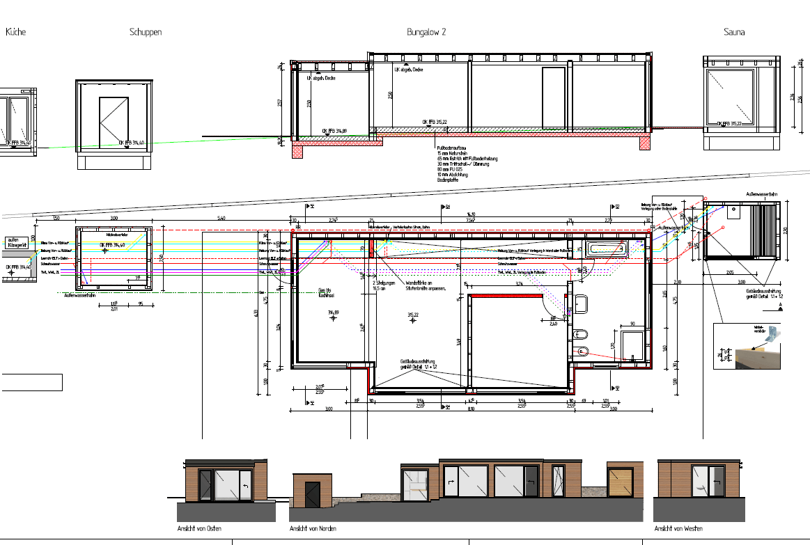
Das Planungsbüro betreut gerade ein Bungalowprojekt in Pößneck mit der Ausführungsplanung und Betreuung der Baumaßnahmen vor Ort. Es entstehen zwei Bungalows, inklusive Sauna, Schuppen und PKW-Stellplatz. Die modern geplanten Bungalows in eingeschossiger Bauweise werden mit einem Flachdach erbaut und zeichnen sich durch die Lage mit Blick ins Grüne aus.
Die großzügigen barrierefreien Wohnräume auf einer Ebene, mit bodentiefen Fensterfronten beziehen den Außenbereich in das Wohnkonzept mit ein und ermöglichen einen freien Blick nach draußen. Die hochwertige Ausstattung und das schnörkellose und individuell gestaltete Innendesign, unterstreichen den zeitlosen Charakter. Der Außenbereich mit seinen modernen Details lädt mit Weitblick zum entspannen und Sonne tanken auf.
Für einen kleinen familiengeführten Landwirtschaftsbetrieb in Moderwitz wird zurzeit ein Teil des Hofes zu einem Schlacht- und Zerlegungsbetrieb mit geplanter Eierpackstation und Hofladen, zur Direktvermarktung der hergestellten Produkte, umgebaut. Künftig sollen die selbst hergestellten Fleischspezialitäten u.a. vom Galloway-Rind, von Schafen und Suppenhühnern im neuen Hofladen verkauft werden. Schlacht-, Zerlege- und Verarbeitungsräume für die bäuerliche Direktvermarktung haben besondere Anforderungen an die Bau- und Hygienevorschriften zu erfüllen. So wird nicht einfach „nur“ ein Bauantrag eingereicht, sondern es erfolgt u.a. auch eine enge Zusammenarbeit mit dem Veterinäramt. Unter großer Beachtung der Anforderungen an Sicherheit und Gesundheitsschutz erfolgt Stück für Stück die Umsetzung des Bauvorhabens. Die Rohbau- und Tiefbauarbeiten sind mittlerweile so gut wie abgeschlossen und der Innenausbau rückt in den Fokus.








